Shadow Retreat Ranch
The Shadow Retreat Ranch was designed with entertaining and efficency in mind.
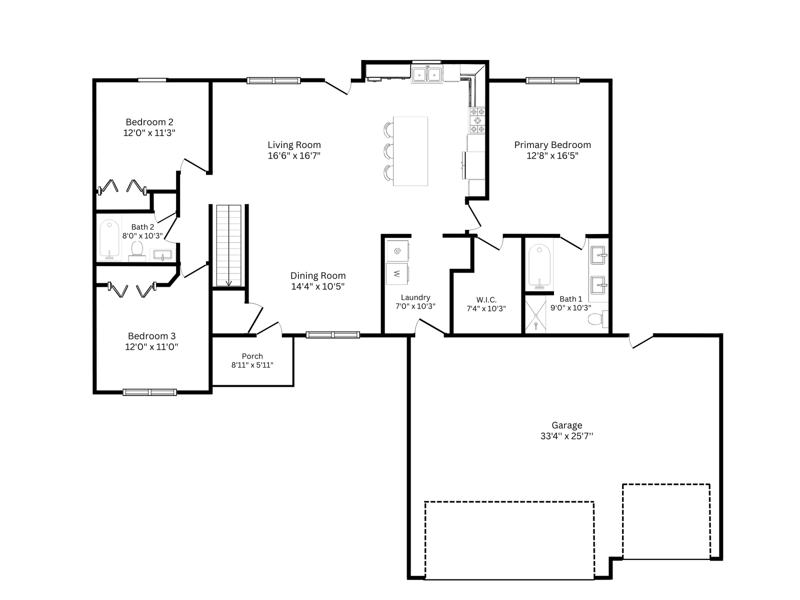
This thoughtfully designed home features a large kitchen with open-concept layout, seamlessly blending living spaces for easy entertaining and everyday living. With added solar panels for energy efficiency and a fully equipped game room basement, this ranch-style home offers its owners modern upgrades and a cozy lifestyle.
Blueprints
Client: Clinton Family
Location: Liberty, IL
Scope of Project: New Construction, Custom Build, Wausau Homes
Square Footage: 3,348
Floor Plan:Â One Story Ranch, Finished basement
Bedrooms: 3
Bathrooms: 3
Garage: 3 Car Garage
