Greenview Loft
Greenview Loft balances elevated living spaces with cozy hospitality.
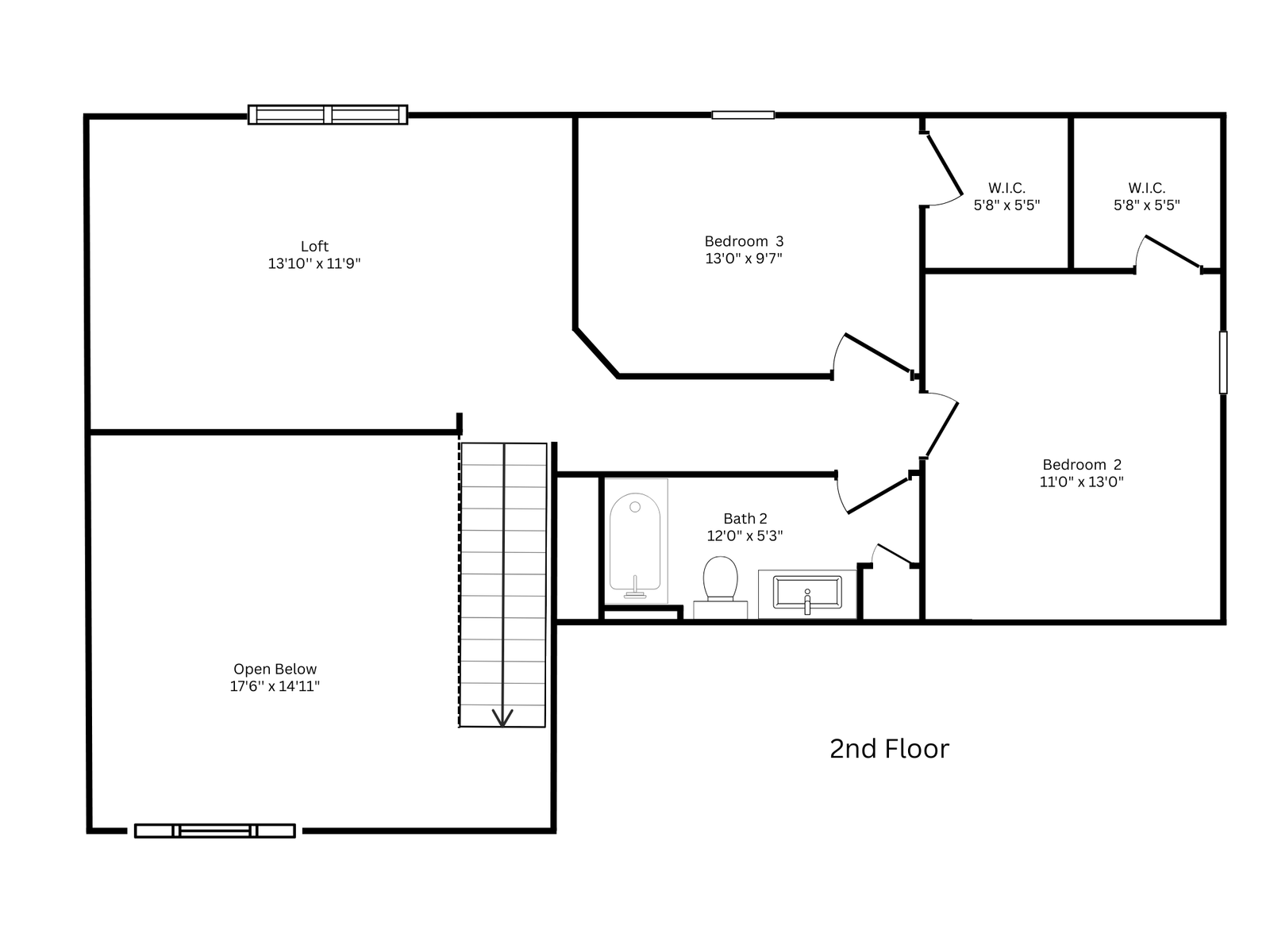
This stunning two-story home blends luxury with natural beauty. The master bedroom on the main level offers convenient single-floor living, while the open loft overlooks a great room with soaring 17-foot ceilings. The great room is highlighted by a custom wall of windows that flood the space with natural light, and the grand 8-foot front door sets the tone for the home’s inviting and elevated design.
Blueprints



Client: Neylon Farms Subdivision
Location: Mount Sterling, IL
Scope of Project: New Construction, Spec Home, Wausau Homes
Square Footage: 1,816
Floor Plan: Two Story, unfinished basement
Bedrooms: 3
Bathrooms: 2.5
Bathrooms: 2.5
Garage: 2 Car Garage


















