The Ashford House
Timeless simplicity meets handcrafted detail in this warm, open-concept three-bedroom home.
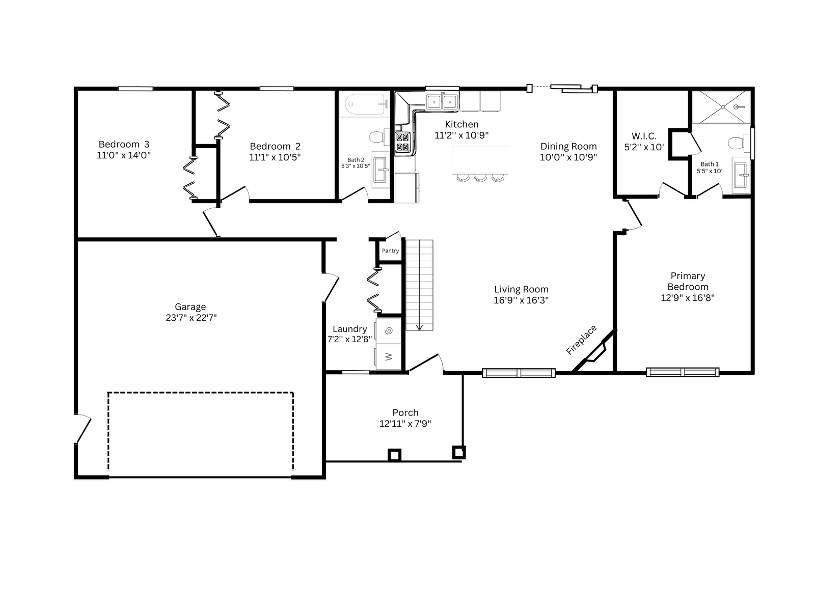
The Ashford is a three-bedroom, two-bath home designed with timeless simplicity and intentional detail. Its open-concept layout allows the kitchen, dining, and living areas to flow seamlessly together, anchored by a warm fireplace that serves as the heart of the home. Modern mid-century inspired carpentry in the kitchen introduces clean lines and handcrafted character, elevating the space while maintaining everyday functionality. A dedicated laundry room adds convenience and thoughtful organization to daily routines. The Ashford reflects durable craftsmanship, balanced design, and a layout built to support both gathering and everyday living.
Blueprints
Client: Neylon Farms Subdivision
Location: Mount Sterling, IL
Scope of Project: New Construction, Spec Home, Wausau Homes
Square Footage: 1,536
Floor Plan: One story, unfinished basement
Bedrooms: 3
Bathrooms: 2
