The Triad Ridge
The Triad Ridge Modern Farm House
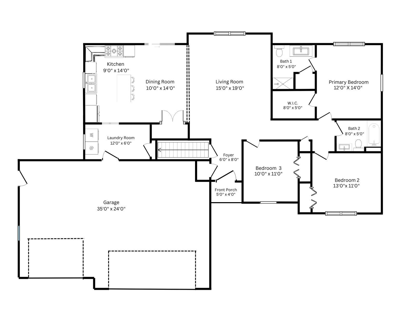
This custom one-story ranch features a striking dark exterior, spacious three-car garage, and a thoughtfully designed interior. Highlights include a vaulted ceiling in the living room, a custom walk-in pantry, and an unfinished basement ready for future expansion. A clean functional layout makes this home perfect for everyday living with room to grow.
Blueprints
Client: Schmitz Family
Location: Neylon Farms Subdivision, Mount Sterling, IL
Scope of Project: New Construction, Spec Home
Square Footage: 1,816
Floor Plan:Â One Story, unfinished basement
Bedrooms: 3
Bathrooms: 2
Garage: 3 Car Garage
